不锈钢螺旋上料机是工业生产过程中经常用到的设备,因其故障率低、拆卸清洗简单、自动化程度高,故在粉料的输送过程中经常使用到,因其结构形式多样,为给朋友们选择螺旋提升机提高方便,今天我们将各种螺旋提升机的图片综合一下,并简单分析各自的优劣,希望对你选择不锈钢螺旋上料机有所帮助。

图片说明:该种类型为不锈钢圆斗倾斜式螺旋上料机,可以与包装机等设备配套使用,实现加料过程的自动化,圆斗料仓,更易于将物料输送干净。该型号螺旋上料机外观漂亮,清洗方便。
特点:
1、该CY-T1型螺旋提升机能够提升多种粉剂和颗粒类物料,装料仓与绞龙均为不锈钢制成;
2、上料电机、振动电机各自开关控制振动幅度可调,整条螺旋可以方便拆装、清洗。
3、该机具有自动加料、自动停止(独立使用需要加装我公司的控制系统,以期完成自动加料功能)
4、螺旋及料桶与料仓之间软连接,拆卸轻松;
5、料筒下端有活门及正反转开关,清洗方便;
6、料仓加配振动电机,使物料轻松自动进入螺旋。

说明:该种型号为方斗不锈钢螺旋上料机,储料仓外观为方形,相对于圆形螺旋上料机,该螺旋提升机在加工过程中,工艺相对简单,成本也就较低,加装了电磁振动器,物料输送也是比较干净的。
技术参数:
提升量:1000-3000Kg/H
料箱容积:100-300Kg
上料高度:1600mm(高度可根据用户定制)
电压功率:AC380v 1100W(可定制220v)
整机重量:150kg

垂直不锈钢螺旋上料机图片的说明:该种型号的螺旋上料机,采用垂直式上料,相对于倾斜式的l螺旋提升机,占地面积比较小,相对于倾斜式的螺旋上料机,输送效率稍微低些。要提高效率,可以加装水平强推机构。
产品补充说明:
螺旋提升机是靠电机产生动力,带动摆线减速机传动到螺旋器,是一种利用螺旋旋转使物料向前挤压,同时使物料产生向前的推动,螺旋上料从进料口进料经螺旋器强制性使物料输送到出料口.
该螺旋提升机既可与我公司的系列包装机配套使用,完成自动加料功能;又可独立使用为混合机、注塑机等有一定高度要求的设备自动供料。

图片说明:该型号为加装了水平强推机构的垂直不锈钢螺旋上料机,先水平螺旋输送,再垂直螺旋提升,适用于流动性较好的粉体物料的输送。

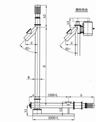
图片说明:该图片上的螺旋提升机,很好的展示了客户再订购不锈钢螺旋上料机时,需要提高适合自己的输送高度、输送角度、螺旋管径、料仓的尺寸,为您选购螺旋上料机时提供图片参考。




客服1