郑州杰凯专业的粉体立式垂直螺旋上料机制造商,可以根据用户现场定制不同尺寸的设备,该机运行平稳,工作可靠、占地面积小,可设计为移动式,可配置自动上料控制系统。

粉体立式垂直螺旋上料机是工农业各部门机械化运输工作的主要设备,能大大减轻劳动强度,提高工作效率,具有广泛的应用领域。广泛用于建材.化工.电力.冶金.煤炭.粮食等工业,粉体立式垂直螺旋上料机用于输送粉末及颗粒及块状、颗粒状及块状物料,如煤灰、渣、水泥、谷物等,物料温度在200℃以下。
粉体立式垂直螺旋上料机特点
1。适用于粮食及饲料工业中的各种粉粒及颗粒物料,中间产品及成品的输送;
2. 结构紧凑,占地面积?。?/span>
3. 结构简单,工作可靠,操作简便,成本较低;
4. 可在输送过程中完成混合搅拌或冷却等其他工艺。
粉体立式垂直螺旋上料机的优点:
1。上料机是利用螺旋旋转将物料向前挤压,同时使物料向前推进。
2. 上料采用螺旋强制运动,因此,螺旋上料器不受物料比重及物料流动的影响。
3. 上料能垂直上料,能将物料送到较高的地方,同时减少输送行程。
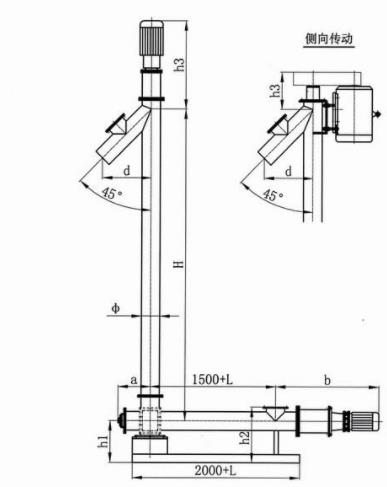
送料技术参数:
1. 输送高度:(根据客户要求定制)
2. 整机功率:(如:AC380V50HZ.1.5KW3.
3. 整机重量:80Kg
4. 4.输送量:3m3/h
5. 5.料仓容量:100L。
立式螺旋上料装置主要技术参数:
请注意项目jk-600 jk-1000 jk-2000 jk-3000。
电动机功率(kw)1.5 1.5 2.2 2.2。
推压电动机的功率0.55 0.75 0.75 0.75
进料管通径102 102 114 133。
配料(kg/h) 600 1000 2000 3000。
物料箱容(kg)80 150 200 250。
物料箱号(cm)65*65*80100*75*80120*80*80160*80*80*80。
机械重(kg)80150200300。
郑州粉体立式垂直螺旋上料机的结构及说明:
1.该机是一种非基础固定型,由传动电机.减速箱.壳管.螺旋体按顺序连接成一体。
2.轴端和螺旋体用渐开线花键联接,装拆方便,承载力大,安全可靠。
3.粉体立式垂直螺旋上料机是由钢管通过法兰连接的各个部件组成的整体,刚性好,可任意选择工作位置及工作姿态,并可任意拆卸和移动。
4.进料口可根据施工现场条件制作所需倾角,并与其他配套设备连接固定。
5.本机采用盘形钢带整体联接刀片,螺旋面精度高,内孔外径螺旋距尺寸准确,输送条件好。
粉体立式垂直螺旋上料机的结构及说明:
1。本机为非基础固定式,由传动电机.减速箱.壳管.螺旋体按顺序连接,合为一体。
2.轴端和螺旋体用渐开线花键联接,装拆方便,承载力大,安全可靠。
3.输送机壳体是由钢管通过法兰连接的各个部件组成的整体,刚性好,可任意选择工作位置及工作姿态,并可任意拆卸和移动。
4.进料口可根据施工现场条件制作所需倾角,并与其他配套设备连接固定。
5.本机采用盘形钢带连轧一体刀片,螺旋面精度高,内孔外径螺旋距尺寸准确,输送工况好。




客服1