z型上料机是颗粒类物料输送过程中的常用设备,采用了水平-垂直-水平的结构形式,采用变频调速,可根据输送量的要求轻松配合受料设备的工作,郑州杰凯10余年生产经验,承接定制,欢迎垂询,整机设计合理,运行平稳,运行噪音小,故障率低,既可单独使用,也可与我司组合秤、包装机等配套使用。

一、z型上料机产品概述
Z型提升机该机适用于粮食、食品、饲料和化工等部门的颗粒料、粉料的垂直提升输送。可以和包装机组成定量自动包装系统,广泛应用于食品包装行业。主要由304不锈钢以及食品级塑料聚丙PP制成,安全卫生。并由控制电路以及料位控制实现自动供料和停止的自动化功能。
二、z型斗式提升机产品特点
1、可实现物料水平和垂直高度的快速提升
2、可实现电脑控制,自动化程度高
3、操作简单,维护方便
4、耐酸、耐碱、耐油,可输送腐蚀性物料
5、整机由304不锈钢和PP机塑料组成,可用于食品级物料的输送
6、物料输送过程中基本无破损,可减少物料的损耗
7、可选配震动喂料器投料,快速、均匀,无堵料、空料的等现象

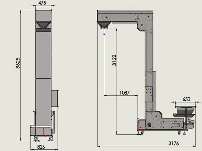
三、z型上料机技术参数
功率:0.75-1.5kw
输送量:3-8m3/h
输送斗:1.6L(420*140*70)(食品级PP料)
电压:220v/380v 50hz
规格:L2300*W1000*1250mm
重量:500-600kg
四、产品综述:
1、z型斗式提升机采用了全密封的设计形式,在输送过程中,无粉尘泄露,确保了生产环境的卫生、干净;
2、采用了变频调速,在需要调整输送量时,仅需选装旋钮即可快速完成,简单轻松;
3、下水平距离、垂直输送高度、上水平距离,可根据输送距离、输送的高度灵活设计,可据优化使用现场的具体参数,个性化定制。
4、经过多年的产品优化,整机设计结构更趋于合理,故障点得到较大的减少、故障率自然就低;
5、我们是源头厂家直销,常规产品库存充足,定制产品,加工周期短,售后服务有保障,价格也很美丽哦;
6、z型上料机采用了诱导式卸料,传送料斗密集分布,在物料输送时几乎无回料和挖料现象,因此无效功率少




客服1