郑州杰凯系螺旋输送机专业生产厂家,为满足用户给多台设备加料的需要,我司设计了移动螺旋输送机,该机可分为倾斜式和垂直式螺旋输送机,适用于干散物料和不怕破碎物料输送到一定水平距离和高度的场合,可据用户现场环境,定制不同尺寸的移动螺旋输送机,价格美丽,欢迎垂询!

1、工作原理:
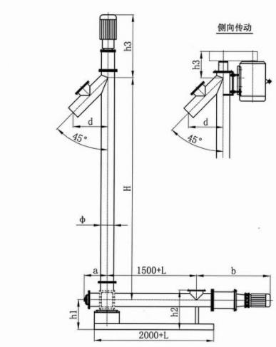
移动螺旋输送机是靠电机产生动力,带动摆线减速机传动到螺旋器,是一种利用螺旋旋转使物料向前挤压,同时使物料产生向前的推动,螺旋上料机从进料口进料经螺旋器强制性使物料输送到出料口
2、适用范围:
2.1、适用与将物料提高到一定高度的情况下使用,例如与注塑机、混合机、定量包装机、定量包装秤等配套使用。
2.2、适宜使用的物料:干散性粉状物料(如淀粉、面粉、添加剂、农药、兽药等);不怕破损的小颗粒物料(如:pvc颗粒、鸡精、白糖、味精、小杂粮等)
2.3、不适宜使用的物料:超细粉、不允许有破损的小颗粒、有较高含水量及粘性的物料

3、移动螺旋输送机可选传动方式:
3.1、皮带减速
3.2、链条减速
3.3、减速机减速
4、可选材质:碳钢、201不锈钢、304不锈钢、316不锈钢。
说明:不同材质是针对不同使用现场及物料特性而选择的,一般腐蚀性较强的选择316,食品级的选择304不锈钢,没什么腐蚀性的选择201不锈钢??筛萦没ё陨淼奶跫醒≡瘛?/span>
5、移动螺旋输送机技术参数(通用型):
上料高度:1600mm (特殊要求可定制)
上料速度:1000-2000kg/h
电机功率:1.1kw
振动电机功率:0.15kw
螺旋管径:∮114mm、(∮159mm、∮213mm、∮273mm 说明:不同的管径是针对不同的输送量进行配套选择的)
移动螺旋输送机减速方式:皮带减速
料仓容积:120L
整机重量:150kg
设备尺寸(不含螺旋上料管的尺寸):860×755×840mm
产品综述:
1、移动螺旋输送机使用起来更方便,而且节约成本
2、全系设备均配置振动或者搅拌机构,有效解决物料搭桥问题
3、可选择我司的自动控制系统,实现加料过程无人值守,节约人工成本
4、可定制不同管径的移动螺旋输送机




客服1