郑州杰凯生产的z型连续式斗式提升机是将颗粒物料输送到一定高度和水平距离的上料设备,可以独立使用,也可与我司的组合秤或者自动包装机配合使用,整机运行平稳,故障率低。
一、z型连续式斗式提升机概述。
应用于粮食、食品、饲料、化工等行业中颗粒及粉料的垂直提升输送。可与包装机组成定量自动包装系统,广泛应用于食品包装行业。以304不锈钢为主要机架结构,食品级聚丙烯输送斗,安全卫生。由控制电路和料位控制实现自动进、停。
二、z型连续式斗式提升机产品特点。
1、能迅速将颗粒物料输送到一定的水平距离和垂直高度。
2、可实现微机控制,自动化程度高。
3、z型连续式斗式颗粒提升机操作简便,维修方便。
4、耐酸、碱、油性及输送腐蚀性物料。
5.z型连续式斗式提升机由304不锈钢和PP塑料组成,可用于食品级物料的输送。
6.材料在运输过程中基本没有损坏,不破坏物料自身特性。
7.斗可快速、均匀进料,无堵颗粒料、空料等现象。
三、z型连续式斗式提升机技术参数。
电源:0.75-1.5kw。
适用输送物料:一般输送颗粒类物料为宜
输送料斗尺寸:1.6L(420*140*70)(食品级PP材料)
电压:220v/380v50hz。
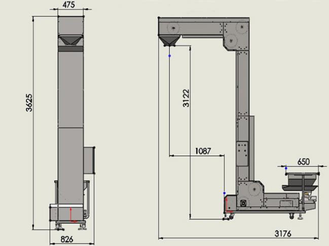
外观尺寸:L2300*W1000*1250mm。
设备重量:500-600kg。
四、z型连续式斗式提升机工作原理:

五、产品综述:
z型连续式斗式提升机。
1.z型连续式斗式提升机与颗粒包装机配合使用,在不需要人工干预的情况下,可完全自动化。
2、整机设计合理,结构紧凑,全密封设计,无粉尘泄漏,生产环境干净;
3.通常采用自流式进料结构。若有特殊要求,可设计成电磁振动进料。
4、设计合理,容易清洁;
5.与其它厂家颗粒包装机配合使用,可按客户包装机规格定做。
6.厂家直销,优质产品,售后有保障,价格优惠;
六、z型连续式斗式颗粒提升机适用的物料





客服1