铁岭不锈钢螺旋提升机厂家专业生产振动螺旋提升机,该螺旋提升机是工业生产中经常用到的输送设备,一般根据客户配套设备的尺寸,量身定做,也可与混合机、注塑机、包装机等配合使用,加料过程无粉尘,可据用户要求定做任意管径,任何输送高度的螺旋提升机,源头厂家,价格优惠,欢迎惠顾咨询!

1.铁岭不锈钢螺旋提升机厂家的工作原理:
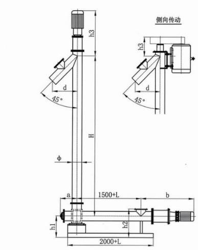
振动螺旋提升机通过减速机驱动螺旋轴的旋转,螺旋轴上的螺旋叶片驱动物料,将物料输送到一定的水平距离和水平高度,广泛应用于厂家工业生产中。
第二,管式螺旋上料机主要技术参数:

1.进料速度:1-3T/H(可定制)
2.铁岭不锈钢螺旋提升机厂家机箱体容积:110升(可定制)
3.供电:三相380V50Hz(220V可定制)
四、整机功率:驱动马达1.1KW振动马达150W。
5.整机重量:110公斤。
6.振动螺旋提升机进料高度:1600毫米(可定制)
7.料斗外形尺寸:800×800mm(可定制圆斗送料器)
3.不锈钢螺杆上料机性能特征:
1.螺旋提升机开关设计为正反转控制,便于清除管道中的残留物料;
二、铁岭不锈钢螺旋提升机厂家料管下端设计有放料门,清料时,打开放料门,马达反转,即可完成清料;
3.用卡箍固定螺杆端座,便于拆卸时将整个螺杆抽出,便于清洗;
4.可安装传感器和智能控制电路,进行料位控制,实现自动给料或过载报警;
五、在储料仓上安装振动马达,能有效解决物料搭架现象;
6.运输效率高,工作安全可靠,结构简单,功能齐全;
7.铁岭不锈钢螺旋提升机厂家采用无缝管设计,密封性能好,噪音小,外形美观;
适合使用的物料:
粉末状、小颗粒不怕破碎的物料适合使用振动螺旋提升机

三、产品综述:
1、不锈钢螺旋上料机适用于粉末物料的定量输送;
2、该机设计为正反转,料管底部设计有放料口,通过电机的反转,轻松将残余物料放出;
3、该机在料仓上设计有振动电机,方便物料进入料管,避免了物料搭桥现象。
4、振动螺旋提升机可以配置自动上料控制系统,解决了上料自动化问题。
5、铁岭不锈钢螺旋提升机厂家可多点进料、多点出料,使用方便

铁岭,辽宁省辖地级市,地处辽宁北部,松辽平原中段,地势大体是东高中低、北高南低,属温带大陆性季风气候;南与沈阳和抚顺毗邻,北与吉林省四平市相连,东与抚顺市清原满族自治县、吉林省辽源市接壤,西与法库、康平及内蒙古通辽为邻。全市东西最长134公里、南北端宽162公里,总面积1.3万平方公里,其中,市区面积638平方公里。
铁岭市辖2个市辖区、3个县,代管2个县级市,根据第七次人口普查数据,截至2020年11月1日零时,铁岭市常住人口为2388294人。
铁岭是闻名的“体育冠军之乡”,自1984年以来,向省以上的优秀运动队输送近600名体育后备人才,其中阎红、吕刚、陈跃玲、孙福明、刘宏宇5人成为了世界冠军。铁岭是国家体育训练基地,其中西丰县和开原市被评为“全国体育先进县”。 铁岭是“小品艺术之乡”,拥有一支编导演相结合的喜剧小品队伍,其创作表演的喜剧小品风格独特,成为了铁岭的一个品牌。
2019年,被列为第二批国家农产品质量安全县。 2021年铁岭全市实现地区生产总值716亿元,按可比价计算,同比增长6.1%。
截至2020年7月,铁岭市共辖7个行政区,包括有2个市辖区、2个县级市、3个县,分别是银州区、清河区、调兵山市、开原市、铁岭县、西丰县、昌图县。铁岭市人民政府驻铁岭县金沙江路28号
我司在铁岭设立有办事机构,有需要的朋友可以就近咨询不锈钢螺旋提升机





客服1