郑州杰凯厂家生产的螺旋提升机,按照材质可分为碳钢型和不锈钢型螺旋提升机,为解决物料进入输送管前搭桥问题,在储料仓上加装了电磁振动器,又称为振动螺旋上料机,源头厂家,承接定制,免费设计,价格优惠,按照上料形式分为倾角型和垂直型不锈钢螺旋提升机,欢迎垂询:13838093755

一、螺旋上料机的工作原理:
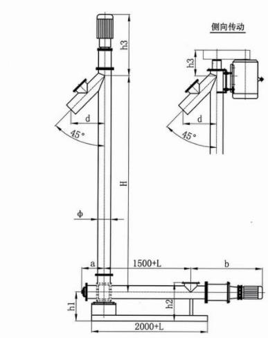
振动螺旋提升机是通过减速机带动螺旋轴的转动,螺旋轴上的螺旋叶片转动带动物料,将物料输送到一定的水平距离和水平高度,在工业生产中得到较为广泛的应用。
二、主要技术参数:
1、上料速度:1-3T/H (可定制)
2、料箱容积:110升 (可定制)
3、电源:三相380V 50Hz (可定制220V)
4、整机功率:驱动电机1.1KW 振动电机150W
5、振动螺旋提升机整机重量:110Kg
6、上料高度:1600mm(可定制)
7、储料仓外形尺寸:800×800mm(可定制圆斗上料机)

三、性能特点:
1、螺旋上料机的开关设计为正反转控制,可以方便清除料管内的残余物料;
2、在料管的下端设计有放料门,在清料的时候,打开放料门,电机反转,即可完成清料;
3、采用卡箍固定螺杆端座,方便在拆卸时螺旋整条抽出,方便清洗;
4、振动螺旋提升机可加装传感器及智能控制电路,进行料位控制实现自动给料功能或过载报警等功能;
5、在储料仓上安装有振动电机,可以有效解决不锈钢螺旋提升机物料搭架现象;
6、具有输送效率高,工作安全可靠,结构简单,功能完备;
7、密封性好、噪音小、外形美观等特点;
四、不锈钢螺旋提升机的产品综述:
1、既可独立使用,给料仓加料,也可与包装机、注塑机、混合机等设备配合使用,实现加料的自动化;
2、加装我司的Plc自动供料控制系统,可以实现加料过程的全自动化,有效提高工作效率,降低生产成本;
3、该不锈钢螺旋提升机在输送管下端,设计了放料口,在需要清理残料时,仅需打开放料口,电机反转即可快速完成清料
4、整机设计合理,运行平稳,故障点少,故障率低
5、不锈钢螺旋提升机的输送管采用无缝管设计,不仅外观漂亮,而且在粉末物料输送过程中,可以有效减少粉尘





客服1