不锈钢螺旋提升机与材料的接触部分采用不锈钢材料,耐腐蚀。耐高温。不容易生锈,在物料输送过程中可以确保原材料不会被污染,不会带来任何破坏,可以实现生产过程中的全封闭自动化快速进料,具有加料过程自动化的特点。。
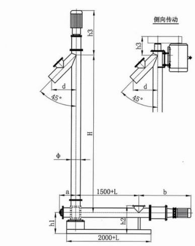
不锈钢螺旋上料机可根据不同的应用场景采用不同的设计,如是否需要加长、是否自动加料,输送的倾角、进料口是否需要装料斗、进料斗尺寸等。

不锈钢螺旋提升机广泛应用于建筑材料、化工、电力、冶金、煤矿、粮食等各个行业。它适用于水平、倾斜或垂直输送粉末。颗粒状和小块物料,如煤矿?;?。渣。水泥。食品等。
1.整机与材料的接触部分均采用不锈钢材料,耐酸碱腐蚀,耐高温,不易生锈,清洁卫生。
2.1-12米的长度设计范围可以定制,上料管径可以根据用户要求设计,单机上料高度可以达到2-5米,可以多机串联使用,每小时上料速度1-3吨。

3.物料仓加装振动电机,使物料轻松自动进入螺旋,物料不易堵塞。
4.螺旋可反转排料,料管下端有闸门放料,整个螺旋可轻松取出。
1.不锈钢螺旋提升机管内壁与螺旋叶片间隙3mm,螺旋叶片激光切割加工,所有焊接接头抛光处理,清洁卫生,无残留物料。
2.采用进出口万向轴承隔热防尘设计,上料机头设计安装进口油封,确保轴承内有灰尘和杂物,经久耐用。
3.螺旋轴采用不锈钢无缝管,经车床校正,保证同心度,运行稳定,螺旋叶片采用加厚不锈钢叶片,使用寿命长。
4.不锈钢螺旋提升机电气设计具有过载?;?,能有效?;さ缁蝗忌?,操作安全可靠。





客服1