变频螺旋上料机通过加装变频器,通过变频器调节电机的运行速度,可控制上料量的大小,实现均匀上料,整机运行平稳,外观漂亮,内部结构合理,噪音小,故障率低,清洗残料快捷、方便??筛萦没殖∩璞傅母叨?、需要输送的水平距离、输送量的大小、输送介质的不同特性及其他的特殊要求,进行个性化的量身定制,欢迎垂询!

杰凯源头粉末螺杆上料机生产厂家,支持各种特殊定制,可定制碳钢、不锈钢材质、可定制不同上料高度、不同料管尺寸、不同料仓尺寸等,只需将要求告诉我们,我们给出解决方案。
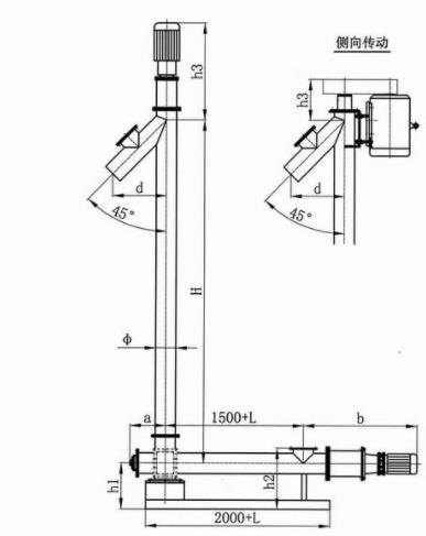
1.粉末螺杆上料机的工作原理:
粉末螺杆上料机通过减速机驱动螺旋轴的旋转,螺旋轴上的螺旋叶片驱动物料,将物料输送到一定的水平距离和水平高度,广泛应用于厂家工业生产中。

第二,变频螺旋上料机主要技术参数:
1.进料速度:1-3T/H(可定制)
2.粉末螺杆上料机料机箱体容积:110升(可定制)
3.供电:三相380V50Hz(220V可定制)
四、整机功率:驱动马达1.1KW振动马达150W。
5.整机重量:110公斤。
6.自动螺旋上料机进料高度:1600毫米(可定制)
7.料斗外形尺寸:800×800mm(可定制圆斗送料器)
3.粉末螺杆上料机性能特征:
1.不锈钢螺旋提升机开关设计为正反转控制,便于清除管道中的残留物料;
8、变频器功率:依据电机功率而定。
二、变频螺旋上料机料管下端设计有放料门,清料时,打开放料门,马达反转,即可完成清料;
3.用卡箍固定螺杆端座,便于拆卸时将整个螺杆抽出,便于清洗;
4.可安装传感器和智能控制电路,进行料位控制,实现自动给料或过载报警;
五、在储料仓上安装振动马达,能有效解决物料搭架现象;
6.运输效率高,工作安全可靠,结构简单,功能齐全;
7.自动螺旋上料机密封性能好,噪音小,外形美观;

三、产品综述:
1、变频螺旋上料机是一种由变频器进行调速的输送设备,经过变频器调整上料电机的运转速度,可以实现不同输送量的快速调整,
2、该机可以实现较为均匀的物料输送,不是特别精确的要求的情况下,无需通过称重传感器的控制,基本可以实现定量供料
3、相对于调速电机调速实现物料输送量的调整,变频螺旋上料机具有调整更加简单、调整输送量更为精准、细腻的特点。
4、变频螺旋上料机的输送方式多样化,有倾斜式、水平式、垂直式及水平倾斜式组合和垂直水平式组合多种形式,根据用户现场设备需要输送的距离、高度和安装位置是否受限等具体情况而定,我们是源头生产厂家,有着10余人的设计、开发团队,支持现场测绘、免费设计、现场出图,满足各种要求的个性化定制。
5、我们有着数控激光割、数控车床等较为先进的生产设备,生产的各种配件加工误差小,配合紧凑,做出的自动螺旋上料机外观漂亮,价格更优惠。
6、各种配件、螺旋叶片备货充足,对于非标定制的设备加工周期更短。
7、各种组合的变频螺旋上料机,可以实现多点进料、多点出料的生产要求,满足生产线多点自动化供料的要求。





客服1