郑州杰凯专业生产垂直螺旋上料机生产厂家,适用于粉末物料的垂直输送,采用自流式进料方式,对于流动性不是特别好的物料,可以在水平方向加装强推螺旋,该垂直螺旋式提升机,安装占地空间小,运输物料平稳,可以根据客户受料设备的具体尺寸量身定制,可加装变频器进行变频调速,方便控制物料的输送量。

一、垂直螺旋式上料机的技术参数。
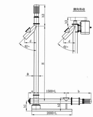
1、输送高度:1650mm(特殊要求可定制)
2、功率:AC380V50HZ.1.5KW。
3、整机重量:120kg。
4、储料仓容量:100L。
5、输送量:3m3/小时。
6、本公司生产的垂直螺旋式上料机标准配置输送管外径为φ114mm,提升高度为1650mm,输送管夹角为45°。特殊情况可根据客户要求定制(输送量、输送高度等)。
7、给料机是一种由低到高的物料输送设备。节省人力,减少材料洒在地上,减少损失和浪费。这种垂直螺旋上料机是我公司根据紧凑的车间设计的不锈钢给料设备,可以尽可能节省占地面积,从低到高垂直输送给料。
2.整机所有与物料接触的部件均采用304不锈钢,长度设计范围为1米-12米,送料管直径为60mm-500mm,可根据客户要求设计。主轴电机的功率取决于客户要求和材料选择。
3.垂直螺旋上料机不锈钢送料管内壁与螺旋叶片之间的间隙距不得超过3mm。激光切割螺旋叶片,抛光所有焊接接头,;
4.送料速度超过每小时100KG-15吨。
5.垂直螺旋提升机采用进口万向轴承保温防尘设计,台湾省进口油封设计安装在进料机两端,确?;页竞驮游锝胫岢?,达到耐用的目的。
科学设计:螺旋轴采用不锈钢无缝管,经车床校正,保证同心度,机器运行稳定,叶片采用不锈钢。叶片上加厚不锈钢叶片。
垂直螺旋提升机底部设计有清料口。如果需要换料,只需用风枪吹下即可清理少量残渣。并在清料口设计安全开关,一旦清料门打开就断电,安全可靠。
8.电路设计为过载?;?,有效保护电机不燃烧。

二、产品综述:
1、垂直式螺旋式上料机占用空间小,比较适合用于场地受到限制的区域
2、可以配置我司的Plc自动控制供料系统,通过安装与受料设备的物料面的阻尼式料位器,实现自动化的供料
3、垂直螺旋式上料机通过加装水平输送,强制性让粉末物料进入输送管内,对于流动性不是特别好的物料特别适用
4、垂直式螺旋提升机的同心度比较好
5、源头厂家直销,可根据受料设备的具体尺寸,我司工程师免费设计供料方案,价格优惠




客服1