粉剂垂直螺旋提升机具有占地面积小的优势,采用螺旋式加料,输送过程密封性好、运行稳定,厂家直销,价格美丽,承接定制,免费设计

粉剂垂直螺旋上料提升机的技术参数。
●输送高度:8000mm(特殊要求可定制)
●功率:AC380V50HZ.1.5KW。
●整机重量:120kg。
储料仓容量:100L。
输送量:3m3/小时。
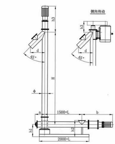
本公司生产的粉剂垂直螺旋上料提升机标准配置输送管外径为φ114mm,提升高度为1650mm,输送管夹角为45°。特殊情况可根据客户要求定制(输送量、输送高度等)。
参数描述:给料机是一种由低到高的物料输送设备。节省人力,减少材料洒在地上,减少损失和浪费。这种垂直螺旋上料机是我公司根据紧凑的车间设计的不锈钢给料设备,可以尽可能节省占地面积,从低到高垂直输送给料。
2.整机所有与物料接触的部件均采用304不锈钢,长度设计范围为1米-12米,送料管直径为60mm-500mm,可根据客户要求设计。主轴电机的功率取决于客户要求和材料选择。
3.垂直螺旋上料机不锈钢送料管内壁与螺旋叶片之间的间隙距不得超过3mm。激光切割螺旋叶片,抛光所有焊接接头,使其残留;
4.送料速度超过每小时100KG-15吨。

5.粉剂垂直螺旋上料提升机采用进口万向轴承保温防尘设计,台湾省进口油封设计安装在进料机两端,确?;页竞驮游锝胫岢校锏侥陀玫哪康摹?/span>
科学设计:螺旋轴采用不锈钢无缝管,经车床校正,保证同心度,机器运行稳定,叶片采用不锈钢。叶片上加厚不锈钢叶片。
垂直螺旋上料机底部设计有清料口。如果需要换料,只需用风枪吹下即可清理少量残渣。并在清料口设计安全开关,一旦清料门打开就断电,安全可靠。
8.电路设计为过载?;ぃ行П;さ缁蝗忌铡?/span>
产品综述:
1、粉剂垂直螺旋上料提升机采用无缝管制作,整机密封性好,生产环境不扬尘
2、设计紧凑合理,占地面积小,对于设备安装位置的尺寸受到较多限制场合,特别适用
3、产品生产材质可选碳钢式、201/304/316不锈钢等材质,选择满足生产需要的材质,尽可能的节约成本。
4、上料过程为全自动化可控上料,整个设备工作期间,无需人工值守,提高企业的自动化管理水平。
5、上料高度可达8米,一般的上料场合均可满足要求。
6、承接各种要求的个性化定制粉剂垂直螺旋上料提升机,生产周期短,一般3-5天,最多一周即可交货。





客服1