郑州杰凯专业的螺旋提升机制造商,该垂直螺旋提升机主要适用于粉末类物料的输送,整机设计合理,占地面积小,运行平稳,故障率低,可根据用户要求量身定制,可加装自动化控制系统,实现送料过程的无人化。

粉体立式垂直螺旋提升机是工农业各部门机械化运输工作的主要设备,能大大减轻劳动强度,提高工作效率,具有广泛的应用领域。广泛用于建材.化工.电力.冶金.煤炭.粮食等工业,粉体立式垂直螺旋上料机用于输送粉末及颗粒及块状、颗粒状及块状物料,如煤灰、渣、水泥、谷物等,物料温度在200℃以下。
粉体立式垂直螺旋提升机特点
1。适用于粮食及饲料工业中的各种粉粒及颗粒物料,中间产品及成品的输送;
2.结构紧凑,占地面积?。?/span>
3。结构简单,工作可靠,操作简便,成本较低;
4。可在输送过程中完成混合搅拌或冷却等其他工艺。
粉体立式垂直螺旋提升机的优点:
1。上料机是利用螺旋旋转将物料向前挤压,同时使物料向前推进。
2.上料采用螺旋强制运动,因此,螺旋上料器不受物料比重及物料流动的影响。
3.上料能垂直上料,能将物料送到较高的地方,同时减少输送行程。
送料技术参数:
1.输送高度:(根据客户要求定制)
2、电源电压(如:AC380V50HZ.1.5KW
3.整机重量:80Kg
4.输送量:3m3/h
5.料仓容量:100L。
机械重(kg)80150200300。
5.本机采用盘形钢带整体联接刀片,螺旋面精度高,内孔外径螺旋距尺寸准确,输送条件好。
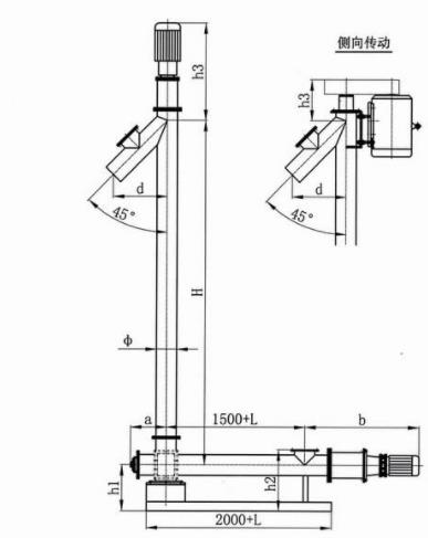
粉体立式垂直螺旋提升机的结构及说明:
1。本机为非基础固定式,由传动电机.减速箱.壳管.螺旋体按顺序连接,合为一体。
2.轴端和螺旋体用渐开线花键联接,装拆方便,承载力大,安全可靠。
3.输送机壳体是由钢管通过法兰连接的各个部件组成的整体,刚性好,可任意选择工作位置及工作姿态,并可任意拆卸和移动。
4.进料口可根据施工现场条件制作所需倾角,并与其他配套设备连接固定。
5.本机采用盘形钢带连轧一体刀片,螺旋面精度高,内孔外径螺旋距尺寸准确,输送工况好。
垂直螺旋提升机是一种占地面积小,输送粉体物料的设备,可根据用户现场物料输送要求来个性化定制,欢迎新老客户咨询!




客服1