郑州杰凯源头不锈钢螺旋式提升机专业生产厂家,可根据用户免费出图,量身打造适合客户现场要求的适用不锈钢螺旋式提升机,整机设计合理,运行平稳,可设计为调速和无人值守,价格合理,欢迎新老客户来厂考察垂询。

1、工作原理:
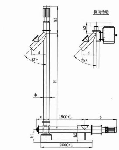
不锈钢螺旋式提升机是靠电机产生动力,带动摆线减速机传动到螺旋器,是一种利用螺旋旋转使物料向前挤压,同时使物料产生向前的推动,螺旋上料机从进料口进料经螺旋器强制性使物料输送到出料口,价格美丽!
2、适用范围:
2.1、适用与将物料提高到一定高度的情况下使用,例如与注塑机、混合机、定量包装机、定量包装秤等配套使用。
2.2、适宜使用的物料:干散性粉状物料(如淀粉、面粉、添加剂、农药、兽药等);不怕破损的小颗粒物料(如:pvc颗粒、鸡精、白糖、味精、小杂粮等)

2.3、不适宜使用的物料:超细粉、不允许有破损的小颗粒、有较高含水量及粘性的物料
3、不锈钢螺旋式提升机可选传动方式:
3.1、皮带减速
3.2、链条减速
3.3、减速机减速
4、可选材质:碳钢、201不锈钢、304不锈钢、316不锈钢。
说明:不同材质是针对不同使用现场及物料特性而选择的,一般腐蚀性较强的选择316,食品级的选择304不锈钢,没什么腐蚀性的选择201不锈钢??筛萦没ё陨淼奶跫醒≡瘢鄹裼呕荨?/span>

5、不锈钢螺旋式提升机技术参数(通用型):
上料高度:1600mm (特殊要求可定制)
上料速度:1000-2000kg/h
电机功率:1.1kw
振动电机功率:0.15kw
螺旋管径:∮114mm、(∮159mm、∮213mm、∮273mm 说明:不同的管径是针对不同的输送量进行配套选择的)
减速方式:皮带减速
料仓容积:120L
产品综述:不锈钢螺旋式提升机适用物料类型为小颗?;蛘叻勰├辔锪?,提升高度一般在 5米以内较为合适,倾斜角度在60°以内,可根据不同现场要求加工为不同的传动方式,价格优惠,同时可根据用户要求进行个性化定制。




客服1